| 地址 | 东京都武蔵野市吉祥寺北町2 | ||
| 价格 | 人民币:1150万 | 租金回报 | 5.30% |
| 建筑年代 | 2020年9月 | 建筑结构 | 铁骨造 |
| 实际面积 | 210.09㎡ | 土地面积 | 160.94㎡ |
| 阳台面积 | / | 车库面积 | / |
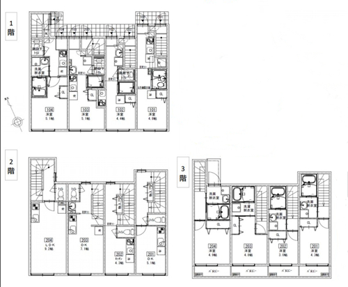
| 总户数 | 8户 | 所在层 | 1-3 |
| 房型 | 1室×4 1室1厅×4 | 朝向 | / |
| 租赁情况 | 出租中 | 租金 | 约10,344,000日元/年 |
| 管理费 | / | 修缮费 | / |
| 建蔽率 | 80%.40% | 容积率 | 300%.80% |
| 用途地域 | 近邻商业地域.第一种住居地域 | 土地权利 | 永久产权 |
| 交通 | 中央线【吉祥寺】站徒步14分钟 | ||
2020年9月建成,永久产权,符合新抗震标准。位于东京都武蔵野市,距中央线【吉祥寺】站徒步14分钟,直通涩谷站16分钟。周边有西友超市徒步10分钟,全家便利店徒步2分钟,吉祥寺LOFT徒步11分钟,日常购物便利,另外成蹊大学徒步17分钟,东京女子大学徒步15分钟,吉祥寺图书馆徒步13分钟。公寓铁骨造3层,全8户,1室/1室1厅两种户型,2F~3F跃层设计,充实的生活配套设施,有Wi-Fi。海外客户可以申请日本银行贷款购房,目前有两种方式:1.需要在日本设立公司,以法人名义购买,贷款额度约60-70%、还款周期25-35年、贷款利率1.5%起。2.个人名义购买,海外客户可以申请日本个人抵押贷款购房,不需要设立公司,贷款额度约50-60%,还款周期15-25年,贷款年龄65岁以内,贷款额度不能低于2000万日元,贷款利率2.7%起。详情欢迎咨询。
1. 地理与基本信息:武藏野市地处东京都西部的多摩地区,北邻小金井市,东接中野区、杉并区,南靠三鹰市,西与府中市接壤。面积约10.98平方公里,2023年人口约15万。作为文教区域,有许多学生和教职员工在此居住。这里绿树成荫,环境优美,文化设施完备,尤其是吉祥寺作为青年文化的发源地而闻名。
2. 主要区域及其特色
• 吉祥寺(Kichijōji):吉祥寺站是JR中央线和京王井之头线的交汇点,是交通枢纽。井之头公园是横跨武藏野市和三鹰市的大型公园,可尽情享受自然与文化。商业区内,像口琴横丁和吉祥寺太阳路等,汇聚了众多个性十足的商店街和购物设施。
• 三鹰台(Mitaka-dai):是宁静的住宅区,以其绿意盎然的环境为魅力所在。
• 境(Sakai):是氛围宁静的住宅区,能让人感受到武藏野市的自然环境。
• 关前(Sekimae):位于武藏野市东部,商业设施和教育机构集中在此。
3. 文化与历史:武藏野市在江户时代是农村地区,明治之后逐步实现了城市化。武藏野市乡土馆是可以了解该市历史和文化的场馆。
4. 观光景点:井之头恩赐公园是四季皆可欣赏自然美景的公园,尤其以赏樱胜地闻名。井之头自然文化园是集动物园和植物园为一体的设施。吉祥寺的商店街有古着店、咖啡馆、书店等个性店铺林立,可尽情享受文化氛围。
5. 交通出行:铁路有JR中央线、京王井之头线经过。主要车站是吉祥寺站。市内出行乘坐巴士很方便,尤其是以吉祥寺站为中心,有许多公交线路运行。
6. 生活环境:教育资源丰富,从幼儿园到大学的教育机构完备,东京学艺大学和国际基督教大学的校区也在此。医疗设施完备,有武藏野红十字医院、武藏野市医师会医院等。商业方面,吉祥寺站周边商业设施集中,生活便利性高,超市、百货公司和专卖店一应俱全。
7. 活动与节庆:吉祥寺音乐节是活跃当地音乐氛围的活动。武藏野市制纪念庆典是庆祝城市历史和文化的节日。
8. 现代的武藏野市:武藏野市是文化与自然和谐相融的城市,尤其是吉祥寺深受年轻人和文化人士的喜爱。作为文教区域也颇有名气,教育环境良好。作为住宅区也很受欢迎,被认为是适合养育子女的城市。
总结:武藏野市,尤其是吉祥寺,以其文化魅力和丰富的自然环境而闻名。这里教育机构众多,深受学生和家庭的喜爱。交通便利,生活所需设施完备,作为宜居城市备受好评。如果您想了解特定区域或观光景点的更多信息,欢迎告知。
您会在一个工作日内得到置业顾问的联络




