| 地址 | 东京都板桥区上板桥2 | ||
| 价格 | 人民币:1479万 | 租金回报 | 5.08% |
| 建筑年代 | 1987年3月 | 建筑结构 | 钢筋混凝土造 |
| 实际面积 | 522.43㎡ | 土地面积 | 304.19㎡ |
| 阳台面积 | / | 车库面积 | / |
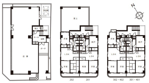
| 总户数 | 7户 | 所在层 | 1-4 |
| 房型 | 店铺×1 3LDK×6 | 朝向 | / |
| 租赁情况 | 目前满室出租 | 租金 | 约14,734,800日元/年/满室 |
| 管理费 | / | 修缮费 | / |
| 建蔽率 | 70% | 容积率 | 200% |
| 用途地域 | / | 土地权利 | 永久产权 |
| 交通 | 东武东上线【上板桥】站徒步3分钟 | ||
1987年3月建成,永久产权,符合新抗震标准。位于东京都板桥区上板桥2丁目,从东武东上线【上板桥】站徒步3分钟,距池袋站一站地距离。公寓楼钢筋混凝土造4层,南西角地,西北侧宽约12m公道,南西侧宽约4m公道,2023年实施大规模修缮,包括外壁及铁部涂装、防水、新设门禁、快递箱等,共7户,1F店铺(目前便利店),2F以上住居层,6户3室1厅,室内生活配套设备齐全,目前满室出租中,详情欢迎咨询。海外客户可以申请日本银行贷款购房,目前有两种方式:1.需要在日本设立公司,以法人名义购买,贷款额度约60-70%、还款周期25-35年、贷款利率1.5%起。2.个人名义购买,海外客户可以申请日本个人抵押贷款购房,不需要设立公司,贷款额度约50-60%,还款周期15-25年,贷款年龄65岁以内,贷款额度不能低于2000万日元,贷款利率2.7%起。
1. 地理与基本信息:板桥区位于东京都北部,北邻埼玉县和光市,东接荒川区,南靠丰岛区,西毗练马区。面积约32.22平方公里,2023年人口约57万,在东京都内属于较大的区,人口密度较高。区内住宅区广泛,公园和绿地众多,深受有子女家庭的喜爱,商业设施也十分完备。
2. 主要区域及其特色
• 板桥站周边:板桥区役所是行政中心,提供各类市民服务。有多条深受当地居民喜爱的商店街,方便日常购物。
• 高岛平(Takashimadaira):高岛平团地是日本最大规模的公营住宅区,配套有公园和购物设施。高岛平中央公园面积广阔,运动设施和儿童游乐场一应俱全。
• 成增(Narimasu):成增站有东武东上线经过,前往板桥区北部交通便利。成增学习馆是用于学习和文化活动的场所。
• 志村(Shimura):志村坂上是历史悠久的街景与新商业设施相融合的区域。志村三丁目公园是附近居民的休憩之地。
• 赤冢(Akatsuka):赤冢公园宽敞开阔,四季皆可欣赏不同的自然美景。ARIO是大型购物中心,日常生活所需物品一应俱全。
3. 文化与历史:板桥区历史悠久,尤其在江户时代作为宿场町繁荣一时。板桥区立美术馆展示当地艺术家的作品和地域文化。
4. 观光景点:板桥区作为观光地的知名度较低,但也有一些值得一游的景点。大谷田公园是赏樱胜地,春季时赏樱游客众多。旧古河庭园是美丽的日式庭园,可感受历史韵味。ITOPIA是经常举办社区活动和各类活动的综合设施。
5. 交通出行:铁路方面有东武东上线、东京地铁有乐町线、副都心线、都营三田线等经过。主要车站有板桥站、成增站、高岛平站、志村三丁目站等。公交线路覆盖全区,尤其是前往住宅区和团地十分便利。
6. 生活环境:教育资源丰富,从幼儿园到高中的教育设施众多,还有东京成德大学、日本大学医学部等高校。医疗设施完备,有板桥中央综合医院、东京警察医院等。商业方面,超市和商店街分布广泛,日常生活便利性高。
7. 活动与节庆:板桥区民节是当地居民广泛参与的大型活动,有音乐、舞蹈和文艺表演。春季樱花节在大谷田公园等地举行,居民们欢聚一堂。
8. 现代的板桥区:板桥区以相对宁静、宜居著称。近年来,再开发项目不断推进,新的商业设施和公共设施逐渐增多。自然环境优越,公园和绿地丰富,是适合养育子女的区域。
总结:板桥区是东京都内充满生活气息的区域,历史与现代交融的街景随处可见。交通便利,宁静的住宅区和商业设施布局平衡。虽作为观光地知名度不高,但对当地居民而言,是居住舒适度很高的地方。如果您想了解特定区域或观光景点的更多信息,欢迎告知。
您会在一个工作日内得到置业顾问的联络




