| 地址 | 东京都台东区 | ||
| 价格 | 人民币:4215万 | 租金回报 | 4.00% |
| 建筑年代 | 2023年3月 | 建筑结构 | 钢筋混凝土造 |
| 实际面积 | 730.12㎡ | 土地面积 | 163.73㎡ |
| 阳台面积 | / | 车库面积 | / |
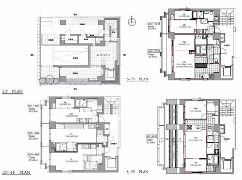
| 总户数 | 17户 | 所在层 | 1-9 |
| 房型 | 1室1厅 | 朝向 | / |
| 租赁情况 | / | 租金 | 约33,702,000日元/年 |
| 管理费 | / | 修缮费 | / |
| 建蔽率 | 80%(100%) | 容积率 | 360% |
| 用途地域 | 商业地域 | 土地权利 | 永久产权 |
| 交通 | ①中央总武线【浅草桥】站 ②东京メトロ日比谷线【秋叶原】站 ③JR山手线.中央总武线.京滨东北线【秋叶原】站 | ||
2023年3月建成,永久产权,符合新抗震标准。位于东京都台东区,4线2站可利用,近邻【浅草桥】站、【秋叶原】站,可直通东京站、池袋站、银座站等。公寓楼钢筋混凝土造9层,西侧宽约6m道路,入口设置门禁、监控摄像头、导入24小时安全系统,用地内有垃圾放置处、快递柜等共用设备也很充实,共17户,各住户25.47㎡~52.86㎡,室内生活配套设备齐全,详情欢迎咨询。海外客户可以申请日本银行贷款购房,目前有两种方式:1.需要在日本设立公司,以法人名义购买,贷款额度约60-70%、还款周期25-35年、贷款利率1.5%起。2.个人名义购买,海外客户可以申请日本个人抵押贷款购房,不需要设立公司,贷款额度约50-60%,还款周期15-25年,贷款年龄65岁以内,贷款额度不能低于2000万日元,贷款利率2.7%起。
No.86
1. 地理与基本信息:台东区位于东京都东部,隔隅田川与墨田区相邻,北接荒川区,西与文京区、千代田区、中央区接壤。面积约10.08平方公里,2023年人口约20万。因是著名观光地,游客众多。台东区以“浅草”“上野”等区域闻名,是东京历史最悠久的地区之一。
2. 主要区域及其特色
• 浅草(Asakusa):浅草寺正式名为“金龍山浅草寺”,是东京最古老的寺院,雷门、五重塔、仲见世通闻名。仲见世通是通往浅草寺的参道,满是特产、传统和菓子及小吃摊。每年夏天的隅田川花火大会热闹非凡,吸引大量游客。东京晴空塔是台东区的标志,也是热门观光景点。
• 上野(Ueno):上野恩赐公园是东京都内最大的公园,汇集了美术馆、博物馆、动物园等。上野动物园是日本最古老的动物园;东京国立博物馆拥有世界知名的日本美术藏品;国立科学博物馆的科学和自然史展示丰富。阿美横丁(アメ横)由战后黑市发展而来,年末年初尤其热闹。不忍池位于公园内,樱花季风景绝美。
• 谷中(Yanaka):保留着江户时代风貌,是宁静的住宅区。谷中灵园是历史悠久的墓碑地和赏樱名所。谷中银座是充满当地生活气息的小商店街。
• 根岸(Negishi):留存着旧时街景,散布着历史悠久的商店和餐饮店。由根岸赛马场旧址发展而来的“东京赛马场”,每年举办天皇赏(秋)赛事。
• 日本堤(Nihon-zutsumi):沿隅田川堤防的区域,春季是赏樱胜地。
3. 文化与历史:台东区历史可追溯至江户时代,是江户文化的发源地之一。这里有许多传统节日,如浅草的三社祭、上野的山王祭等,充满地域活力。落语、歌舞伎等传统表演艺术也很盛行。
4. 观光景点:台东区观光景点密集,有众多不容错过的看点,这里被称为“下町”,保留着浓厚的东京平民生活文化,能感受到当地人的热情。
5. 交通出行:铁路有JR山手线(上野站)、东京地铁(银座线、日比谷线、千代田线)、都营地铁(浅草线)等,上野站还是东北新干线、上越新干线的始发站,是交通枢纽。公交线路覆盖全区,主要车站有上野站、浅草站、田原町站等。
6. 生活环境:教育资源丰富,历史悠久的学校和新的教育设施平衡分布。医疗设施完备,有大学医院等。商业发达,浅草、上野、阿美横等地,购物和餐饮选择多样。
7. 活动与节庆:每年夏天的浅草桑巴狂欢节,能欣赏到类似巴西狂欢节的华丽游行。上野的熊猫节是为庆祝上野动物园的熊猫而举办的活动。隅田川花火大会在7月最后一个星期六举行,沿隅田川燃放烟花。
8. 现代的台东区:近年来,为提升作为观光地的魅力,台东区推进了再开发和观光振兴措施。面向年轻人的咖啡馆、画廊、艺术空间不断增加,传统与现代融合的城市建设正在进行。
总结:台东区充满历史文化气息,对游客来说有众多必去景点。对当地居民而言,这里兼具下町的温暖和生活的便利。传统节日和活动丰富,四季皆有独特风情。若您想了解特定观光景点或区域的更多信息,欢迎告知。
您会在一个工作日内得到置业顾问的联络




