| 地址 | 东京都千代田区 | ||
| 价格 | 人民币:1219万 | 租金回报 | / |
| 建筑年代 | 2003年1月 | 建筑结构 | 钢筋混凝土.铁骨造 |
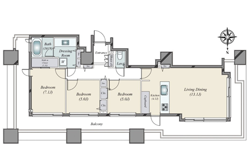
| 实际面积 | 82.58㎡ | 土地面积 | / |
| 阳台面积 | 37.58㎡ | 车库面积 | / |
| 总户数 | 324户 | 所在层 | 17层 |
| 房型 | 3室1厅 | 朝向 | / |
| 租赁情况 | / | 租金 | / |
| 管理费 | 27,380日元/月 | 修缮费 | 32,410日元/月 |
| 建蔽率 | / | 容积率 | / |
| 用途地域 | 商业地域 | 土地权利 | 永久产权 |
| 交通 | ①东京地下铁半蔵门线【神保町】站 ②都营三田线【神保町】站 ③都营新宿线【神保町】站 | ||
2003年1月建成,永久产权,符合新抗震标准。位于东京都千代田区,近邻东京国立近代美术馆,3条线路【神保町】站可利用,通往大手町、六本木、涩谷、银座等交通便利。公寓楼地上29层付地下3层,附近有药妆店、超市、医院,学校等设施,大楼设置门禁、监视器、快递柜等共用设备,有酒店般接待服务,二楼有大厅和花园庭园,可饲养宠物(有细规)。公寓位于17层角住户,3室1厅,所有房间都朝向阳台,采光通风均良好,室内实施翻新,更新生活配套设备,有地暖,步入式衣帽间,卫浴独立,详情欢迎咨询。海外客户可以申请日本银行贷款购房,目前有两种方式:1.需要在日本设立公司,以法人名义购买,贷款额度约60-70%、还款周期25-35年、贷款利率1.5%起。2.个人名义购买,海外客户可以申请日本个人抵押贷款购房,不需要设立公司,贷款额度约50-60%,还款周期15-25年,贷款年龄65岁以内,贷款额度不能低于2000万日元,贷款利率2.7%起。
No.50
1. 地理与基本信息:千代田区地处东京都中央,北邻文京区、丰岛区,东接台东区、荒川区,南靠中央区、港区,西毗新宿区。面积约11.66平方公里,2023年人口约6万。作为商业区,白天人口数量远多于夜间。这里是日本政治和经济的中心,皇居、国会议事堂等重要设施集中于此。
2. 主要区域及其特色
• 皇居周边:皇居是日本天皇的居所,皇居东御苑和皇居外苑对公众开放,是著名的观光景点。丸之内林立着历史悠久的办公楼和商业设施,是商业中心。
• 大手町:大手町站有多条地铁线路经过,发展成为办公街区。大手町塔楼是高层大楼,入驻了许多金融和IT企业。
• 有乐町:有乐町站有JR山手线和东京地铁有乐町线经过,商业设施完备。有乐町大楼内可购物和观影。
• 秋叶原:秋叶原站是JR山手线、总武线、东京地铁日比谷线、筑波快线的交汇点,以电器街闻名。电器街汇聚了大量动漫、游戏和电子产品的专卖店。
• 神田:神田站有JR中央线、京滨东北线、山手线等线路经过,也是学生街。神田古书店街是出版业的中心,有许多古书店。
• 二重桥前:东京站是日本的交通枢纽,新干线和众多普通铁路线在此始发和到达,分为丸之内侧和八重洲侧。
3. 文化与历史:千代田区拥有自江户时代以来的悠久历史,皇居更是日本历史和文化的象征。千代田区立日比谷图书文化馆是当地文化活动的重要场所。
4. 观光景点:皇居的二重桥和东御苑深受游客喜爱。靖国神社是祭祀战争中阵亡者的神社。国会议事堂提供参观活动,可了解日本政治中心的风貌。秋叶原作为动漫和电子产品的圣地,吸引着大量游客。
5. 交通出行:千代田区是东京主要铁路网的汇聚地,东京站更是有多条线路经过。主要车站有东京站、有乐町站、秋叶原站、大手町站、神田站等。区内有方便出行和观光的公交线路。
6. 生活环境:千代田区内中小学数量较少,常借助周边区的学校资源。一桥大学的部分校区位于区内。医疗方面,附近有圣路加国际医院、东京医科大学医院等大型医疗设施。商业上,丸之内、有乐町、秋叶原等地购物和餐饮选择丰富。
7. 活动与节庆:神田祭是日本三大祭典之一,华丽的花车游行值得一看。秋叶原电器节是电器街特有的活动,热闹非凡。
8. 现代的千代田区:千代田区在保持商业区地位的同时,观光吸引力也在不断提升。高层大楼和再开发项目持续推进,丸之内和大手町区域的现代化进程加快。国际化色彩浓厚,吸引了大量外国游客和商务人士。
总结:千代田区是日本政治、经济、文化的中心,涵盖了从历史遗迹到前沿商业区的多样风貌。皇居和东京站周边的美丽街景,以及秋叶原的活力氛围等,看点丰富。这里无论是居住还是观光都颇具魅力,但物价和房租相对较高。如果您想了解特定区域或观光景点的更多信息,欢迎告知。
您会在一个工作日内得到置业顾问的联络




