| 地址 | 东京都葛饰区 | ||
| 价格 | 人民币:930万 | 租金回报 | 6.32% |
| 建筑年代 | 1983年3月 | 建筑结构 | 铁骨造 |
| 实际面积 | 517.60㎡ | 土地面积 | 155.37㎡ |
| 阳台面积 | / | 车库面积 | / |
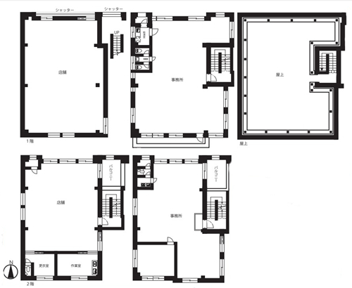
| 总户数 | 4户 | 所在层 | 1-4 |
| 房型 | 店铺、事务所 | 朝向 | / |
| 租赁情况 | 目前满室出租 | 租金 | 约11,772,000日元/年 |
| 管理费 | / | 修缮费 | / |
| 建蔽率 | 80% | 容积率 | 400% |
| 用途地域 | 商业地域 | 土地权利 | 永久产权 |
| 交通 | 京成本线【お花茶屋】站 | ||
1983年3月建成,永久产权。位于东京都葛饰区,路过商店街,京成本线【お花茶屋】站可以利用,可直达上野站。大楼铁骨造4层,北侧宽约8.0m道路,周围没有高的建筑,从屋顶露台眺望良好,近邻便利店、药妆店等,附近还有数个公园,环境良好。大楼共4户,一层一户,目前满室出租中,详情欢迎咨询。海外客户可以申请日本银行贷款购房,目前有两种方式:1.需要在日本设立公司,以法人名义购买,贷款额度约60-70%、还款周期25-35年、贷款利率1.5%起。2.个人名义购买,海外客户可以申请日本个人抵押贷款购房,不需要设立公司,贷款额度约50-60%,还款周期15-25年,贷款年龄65岁以内,贷款额度不能低于2000万日元,贷款利率2.7%起。
No.127
1. 地理与基本信息:葛饰区地处东京都东部,北邻足立区,西接荒川区,南靠江户川区,东与埼玉县川口市和三乡市接壤。面积约34.80平方公里,2023年人口约45万。这里既有下町的独特氛围,也有新开发的区域。葛饰区是漫画家手冢治虫的出生地,设有“手冢治虫纪念馆”,是充满文化气息的区域。
2. 主要区域及其特色
• 龟有(Kameari):龟有站有JR常磐线经过,因是电影《寅次郎的故事》的拍摄地而闻名。寅先生纪念馆是为纪念《寅次郎的故事》主人公车寅次郎(寅先生)而设立的场馆。龟有银座商店街深受当地居民喜爱,受电影影响,也吸引了许多游客。
• 青砥(Aoto):青砥站有京成电铁本线经过,是商业设施集中的区域。青砥神社深受当地居民喜爱。
• 金町(Kanegafuchi):金町站有京成本线经过,商业区域和住宅区交错分布。金町银座是支撑当地居民生活的商店街。
• 新小岩(Shin-Koiwa):新小岩站有总武本线经过,商业设施和住宅众多。新小岩公园自然环境优美,四季都可尽情享受。
3. 文化与历史:葛饰区自江户时代起发展,尤其是龟有曾作为宿场町繁荣一时。葛饰区乡土与天文博物馆可以让人们了解该区的历史和天文知识。
4. 观光景点:手冢治虫纪念馆介绍了被称为“漫画之神”的手冢治虫的作品和生平。水元公园面积在东京都内数一数二,可享受自然和运动。柴又帝释天(京成大正寺)是热门观光地,也是电影《寅次郎的故事》的拍摄地。
5. 交通出行:铁路有JR常磐线、总武本线、京成电铁本线等。主要车站有龟有站、青砥站、金町站、新小岩站等。区内有方便出行的公交线路。
6. 生活环境:教育资源丰富,从幼儿园到高中的教育机构齐全,有东京电机大学、东京成德大学等高校。医疗设施完备,有葛饰红十字医院、东京都立葛饰康复医院等。商业方面,各区域都有商店街和超市,生活便利性高。
7. 活动与节庆:柴又1000人舞是当地的夏日祭典,热闹非凡。葛饰区民节是当地居民参与的大型活动。
8. 现代的葛饰区:葛饰区在保留了下町风情的同时,通过再开发增加了新的商业设施和住宅。这里文化设施和活动丰富,对居民和游客都颇具吸引力。
总结:葛饰区是下町的温暖氛围与丰富文化相融合的区域。特别是受《寅次郎的故事》影响,龟有在全国闻名,手冢治虫纪念馆等成为备受关注的文化景点。自然环境优美的公园和完备的商业设施,营造了宜居的生活环境。如果您想了解特定区域或观光景点的更多信息,欢迎告知。
您会在一个工作日内得到置业顾问的联络




