| 地址 | 东京都大田区 | ||
| 价格 | 人民币:590万 | 租金回报 | 6.4% |
| 建筑年代 | 1990年5月 | 建筑结构 | 钢筋混凝土造 |
| 实际面积 | 195.30㎡ | 土地面积 | 132.23㎡ |
| 阳台面积 | / | 车库面积 | / |
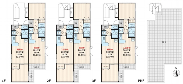
| 总户数 | 6户 | 所在层 | 1-3层 |
| 房型 | 1室1厅 | 朝向 | 南 |
| 租赁情况 | 目前满室出租 | 租金 | 约7,548,000日元/年 |
| 管理费 | / | 修缮费 | / |
| 建蔽率 | 60%.80% | 容积率 | 200%.300% |
| 用途地域 | 近邻商业地域.第一种中高层住居专用地域 | 土地权利 | 永久产权 |
| 交通 | ①东急池上线【久が原】站 ②东急池上线【御嶽山】站 ③东急池上线【千鸟町】站 | ||
1990年5月建成,永久产权,符合新抗震标准。位于东京都大田区,东急池上线可以利用,近邻【久が原】站等。公寓楼钢筋混凝土造3层,北侧道路,周边有便利店、超市、药妆店等日常购物设施,总户数6户,1室1厅户型,全户角住户,主要采光南向,室内生活配套设备齐全,目前满室出租,详情欢迎咨询。海外客户可以申请日本银行贷款购房,目前有两种方式:1.需要在日本设立公司,以法人名义购买,贷款额度约60-70%、还款周期25-35年、贷款利率1.5%起。2.个人名义购买,海外客户可以申请日本个人抵押贷款购房,不需要设立公司,贷款额度约50-60%,还款周期15-25年,贷款年龄65岁以内,贷款额度不能低于2000万日元,贷款利率2.7%起。
No.488
1. 地理与基本信息:大田区地处东京都南部,北邻品川区,东临东京湾,南接川崎市,西与世田谷区和目黑区接壤。面积约60.73平方公里,2023年人口约73万。这里工业区与住宅区交错,人口结构多样。因羽田机场的存在和发达的制造业,大田区也被誉为“制造之城”。
2. 主要区域及其特色
• 羽田(Haneda):羽田机场是国际和国内航线的主要机场,是进出该区的门户。羽田机场国际线航站楼设施先进,还可购物和用餐。
• 蒲田(Kamata):蒲田站有JR京滨东北线、京急本线、东京单轨电车经过,商业区域繁华。蒲田站前商店街是充满活力、供当地居民日常使用的街道。
• 大森(Ōmori):大森站有JR京滨东北线、京急本线经过,商业设施和餐饮店众多,生活便利。大森海岸位于工业区一角,是观赏工厂夜景的好去处。
• 池上(Ikegami):池上本门寺是日莲宗的大本山,信徒众多,四万六千日时会举办盛大法会。池上通商店街是支撑当地居民生活的街道。
• 田园调布(Den-en-chōfu):以高级住宅区闻名,环境静谧且绿树成荫。多摩川可让人们亲近自然,还有完善的骑行道。
3. 文化与历史:大田区曾是农村地区,明治后工业化进程加快,战后随着羽田机场的开设得到了巨大发展。大田区立乡土资料馆可以让人们了解该区的历史和文化。
4. 观光景点:羽田机场展望台可近距离观看飞机起降。大田市场作为筑地市场的分场,是海鲜和食材的批发市场。大森故乡海滨公园可让人们感受自然与历史。
5. 交通出行:铁路有JR京滨东北线、京急本线、东急池上线、东京单轨电车等。主要车站有羽田机场站、蒲田站、大森站、池上站、田园调布站等。区内公交线路众多,出行便利。
6. 生活环境:教育资源丰富,从幼儿园到高中的教育机构齐全,东京农业大学等高校也位于大田区内。医疗设施完备,有大田纪念医院、东京医疗中心等。商业方面,各区域都有商店街和大型商业设施,生活便利性高。
7. 活动与节庆:池上本门寺四万六千日是日莲宗的盛大节日,众多参拜者云集。大田区产业展是介绍当地制造业和中小企业产品的活动。
8. 现代的大田区:大田区作为工业区发挥着重要作用,近年来,随着再开发的推进,新的商业设施和住宅不断涌现。随着羽田机场的扩建和新交通线路的开通,大田区有望迎来更大的发展。
总结:大田区是工业、商业和观光相融合的独特区域。羽田机场的存在对其影响深远,使其成为重要的交通枢纽和“制造之城”。从宁静的住宅区到繁华的商业区,大田区在生活的各个方面都展现出多样性。如果您想了解特定区域或观光景点的更多信息,欢迎告知。
您会在一个工作日内得到置业顾问的联络




