| 地址 | 日本埼玉县さいたま市 | ||
| 价格 | 人民币:1990万 | 租金回报 | 5.87% |
| 建筑年代 | 1992年10月 | 建筑结构 | 钢筋混凝土造 |
| 实际面积 | 836.52㎡ | 土地面积 | 462.63㎡ |
| 阳台面积 | / | 车库面积 | / |
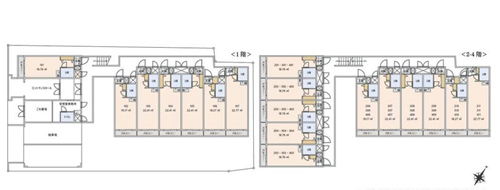
| 总户数 | 40户 | 所在层 | 1-4层 |
| 房型 | 1室 | 朝向 | / |
| 租赁情况 | 目前出租中 | 租金 | 约23,376,000日元/年 |
| 管理费 | / | 修缮费 | / |
| 建蔽率 | 60% | 容积率 | 200% |
| 用途地域 | 第一种住居地域 | 土地权利 | 永久产权 |
| 交通 | JR京滨东北线【北浦和】站 | ||
柏 青 営業部
1992年10月建成,永久产权,符合新抗震标准。位于日本埼玉县さいたま市,JR京滨东北线【北浦和】站可以利用。公寓楼钢筋混凝土造4层,西侧宽约5.45m公道,附近除了超市之外,在北浦和车站前还形成了商业街,购物吃饭便利,另外,周边还有市立图书馆、近代美术馆所在的北浦和公园等文化设施。公寓楼2025年3月完成大规模修缮,设置门禁、总户数40户,住户为18.27㎡~22.77㎡的单间户型,目前出租中,详情欢迎咨询。海外客户可以申请日本银行贷款购房,目前有两种方式:1.需要在日本设立公司,以法人名义购买,贷款额度约60-70%、还款周期25-35年、贷款利率1.5%起。2.个人名义购买,海外客户可以申请日本个人抵押贷款购房,不需要设立公司,贷款额度约50-60%,还款周期15-25年,贷款年龄65岁以内,贷款额度不能低于2000万日元,贷款利率2.7%起。
埼玉 さいたま市浦和区
地址:日本埼玉县さいたま市
交通:JR京滨东北线【北浦和】站
您会在一个工作日内得到置业顾问的联络




