| 地址 | 东京都墨田区 | ||
| 价格 | 人民币:827万 | 租金回报 | / |
| 建筑年代 | 2003年9月 | 建筑结构 | 钢筋混凝土造 |
| 实际面积 | 101.47㎡ | 土地面积 | 46.38㎡ |
| 阳台面积 | 有屋顶露台 | 车库面积 | / |
| 总户数 | / | 所在层 | 1-3层 |
| 房型 | 事务所 | 朝向 | / |
| 租赁情况 | / | 租金 | / |
| 管理费 | / | 修缮费 | / |
| 建蔽率 | 80% | 容积率 | 480% |
| 用途地域 | 商业地域 | 土地权利 | 永久产权 |
| 交通 | ①东京メトロ半蔵门线【錦糸町】站 ②JR总武线.总武快速线【錦糸町】站 | ||
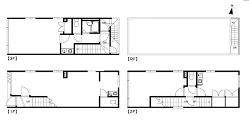
2003年9月建成,永久产权,符合新抗震标准。位于东京都墨田区,东京メトロ半蔵门线、JR总武线.总武快速线【錦糸町】站可以利用,近邻多家大型商业设施,购物便利。大楼位于角地,西侧约8m公道,北侧约6m公道,附近有便利店、超市、银行、邮局等生活设施。大楼钢筋混凝土造3层,1F33.99㎡、2F35.70㎡、3F31.78㎡,另外有屋顶露台,预计2025年4月中旬完成翻新,包括室内部分涂装、清洁、更换厨具、地板等,自用、投资均适用,详情欢迎咨询。海外客户可以申请日本银行贷款购房,目前有两种方式:1.需要在日本设立公司,以法人名义购买,贷款额度约60-70%、还款周期25-35年、贷款利率1.5%起。2.个人名义购买,海外客户可以申请日本个人抵押贷款购房,不需要设立公司,贷款额度约50-60%,还款周期15-25年,贷款年龄65岁以内,贷款额度不能低于2000万日元,贷款利率2.7%起。
1. 地理与基本信息:墨田区位于东京都东部,北邻荒川区,东接江东区,南靠中央区,西毗台东区。面积约13.77平方公里,2023年人口约27万。这里是热门观光地,游客众多。区内不仅有东京晴空塔等众多观光景点,还保留着下町的独特风情。
2. 主要区域及其特色
• 押上(Oshiage):东京晴空塔是世界最高的自立式电波塔,是当地的观光地标。晴空塔下的SOLAMACHI是大型商业设施,可在此购物和用餐。
• 两国(Ryōgoku):两国国技馆是举办大相扑大赛的地方,是相扑文化的中心。江户东京博物馆能让人们了解从江户时代到现代的东京历史。
• 向岛(Mukōjima):隅田公园是位于隅田川沿岸的大型公园,以赏樱胜地而闻名。向岛百花园是历史悠久的日式庭园,四季都能欣赏到不同的花卉。
• 锦糸町(Kinshichō):锦糸町站有JR总武线、地铁半藏门线等线路经过,已发展成为商业区。锦糸町的ORINAS是购物中心,配备完善的电影院和餐饮店。
• 业平桥(Gyōtokubashi):业平桥站有都营地铁新宿线经过,是住宅区集中的区域。
3. 文化与历史:墨田区自江户时代起发展,孕育了隅田川的水运文化和下町文化。旧安田庭园是江户时代的大名庭园,能让人感受到墨田区的历史底蕴。
4. 观光景点:隅田川花火大会原本每年夏天举办,是吸引众多游客的著名活动(近年来多次停办)。横网町公园因是电影《寅次郎的故事》的拍摄地而闻名,园内有寅次郎的铜像。水户偕乐园是著名的赏樱公园。
5. 交通出行:铁路有JR总武线、京成本线、东京地铁半藏门线、都营地铁新宿线、大江户线等。主要车站有押上站、两国站、锦糸町站、业平桥站等。区内有方便出行和观光的公交线路。
6. 生活环境:教育资源丰富,从幼儿园到高中的教育机构齐全,东京理科大学、日本大学等高校的校区也在区内。医疗设施完备,有顺天堂大学医学部附属顺天堂医院、都立墨东医院等。商业方面,各区域都有商店街和大型商业设施,生活便利性高。
7. 活动与节庆:隅田川花火大会曾是夏日的标志性活动,但近年来举办情况不确定。墨田区祭是当地居民参与的地区节日。
8. 现代的墨田区:自东京晴空塔开业以来,墨田区作为观光地的地位日益提升。再开发不断推进,新的住宅和商业设施逐渐增多,同时也保留了下町的独特风情。
总结:墨田区以东京晴空塔为核心,是极受欢迎的观光区域。同时,这里保留着浓厚的历史遗迹和下町文化,不仅吸引游客,也深受当地居民喜爱。生活环境良好,前往市中心交通便利。如果您想了解特定区域或观光景点的更多信息,欢迎告知。
您会在一个工作日内得到置业顾问的联络




