房源信息
价格:39,800万日元(2025年1月31日前有效)
约合:1,154万人民币(2025年1月31日前有效)
位置:东京都港区东新桥1-10-1
土地权利:永久产权
现状:空室
建筑年代:2002年9月
总户数:1000戸
构造:钢筋混凝土造地上47层附地下2层
楼层:28层
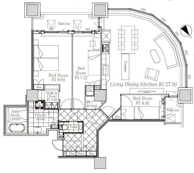
房产户型:3室1厅
使用面积:109.39m²
阳台面积:9.43㎡
管理费:40,500日元/月
修缮费:38,390日元/月
交通:①都营大江户线【汐留】站
②山手线【滨松町】站
③山手线【新桥】站
推荐理由
“Tokyo Twin Parks”是一栋地上47层、地下2层的塔楼公寓,位于距离山手线滨松町站交通便利的位置。虽然这是一座共有1000套物件的大型公寓,但配备了自动锁、送货柜等安全设施,可以支持您舒适的城市生活。
公寓楼由左翼、右翼两栋建筑组成,它位于黄金地段,最吸引人的特点是其独特的地理位置,南边和东边可以看到滨离宫和东京湾的全景,西边可以看到东京塔,北边可以看到银座和丸之内的夜景。虽然位于港区,但它是汐留地区唯一的豪华塔楼公寓,毗邻东京中部的中央区。
穿过一片绿树成荫的公共开放空间,有一个优雅的入口迎接住户。公寓大堂是一个堪称豪华的酒店式空间,让您的日常生活更加奢华。公寓楼内地下室设有储藏室和停车场,一楼设有诊所和休息室,二楼以上为住宅单元。安全措施包括与对讲机相连的自动锁以及每个单元中安装的电视监视器,还安装了送货储物柜。您可以在客房、景观休息室、健身设施等共用设施中度过舒适的时光。
公寓的室内设计由来自世界各地的设计师打造,丝毫不泄露建筑的年代感,奢华的设计让所有看到它的人都感到惊讶,其中最令人印象深刻的是开放式入口和高高的天花板。
Tokyo Twin Parks 的每个单位均配备齐全的设施,如地暖和天花板盒式空调。另一个很棒的功能是公寓有着24小时垃圾处理服务。对于想要住在市中心的人们来说,Tokyo Twin Parks将满足多种需求,将是一个集舒适的居住环境和便利性于一体的选择。
■附近有JR 京滨东北线、根岸线滨松町站,乘车可直达东京站、品川站、川崎站
■提供清洁接待、快递服务等各种前台服务
■楼内共有623个停车位
■副入口设有针对宠物的洗脚区,方便宠物家庭
位置信息
在东新桥居住的主要是年轻的单身人士、年轻夫妇、有孩子的家庭。这是一个安静的住宅区,有许多独栋住宅和低层公寓等公寓楼,人口不是很密集,家庭平均收入较高。不过,虽然这里是安静的住宅区,但通往市中心和市中心的交通便利,而且周边的商业设施和公园星罗棋布,生活便利。值得一提的是,这里居留病童保育设施很近,适合父母双方抚养孩子的家庭,因为在紧急情况下可以安心。东新桥的周边有方便日常购物的超市和自然丰富的公园,营造了便
利的日常生活与休闲空间并存的环境。另一个吸引力是医院距离公寓仅几步之遥,让您可以安心地管理自己的健康。在教育环境方面,东新桥对于有孩子的家庭来说也是一个安全的地方。

港区:港区位于东京23区中央偏南部。该区是拥有最多企业总部的地区,是日本企业的中心。虎之门、新桥、芝为重要的办公商区,经济活动十分活跃。青山、赤坂等商业地区;六本木等娱乐中镇;麻布、白金台等高级住宅区;汐留、台场等大规模开发区,是该区展现各种不同风貌的代表。东宫御所、芝公园、白金台的自然教育园等是丰富的自然环境。驻日大使馆与外资企业的大量进驻,让港区的外国人居住者比例非常高。
受到东京2020年奥运会的影响,进入港区的企业和观光者数量会逐渐增加,商业地域周边的地价预计会出现较大增长。港区坐拥庆应大学、明治学院、东海大学等知名学府,因此针对大学生租赁的房产投资也可为投资带来稳定收益。
交通方面,可以同时利用复数条线路的品川站、新桥站等车站不仅通往东京都心十分便利,通往横滨,川崎和神奈川方向也是十分快捷,亦可以利用高人气的新干线。
对于房产投资,港区地价较东京其他区高,但从保值率角度,港区地价出现下跌的风险远小于其他地区。
图片总览

公寓外景

公寓户型
.jpg)
公寓位置